47533 Kleve

Vermietete EG Wohnung – jetzt kaufen, später einziehen: Ihre Altersvorsorge in der Kleve-Oberstadt

Eckdaten

Objektnr. 99908373#ciRILV
Objektart Apartment
Lage Wohngebiet
Kaufpreis 284.500 €
Wohnfläche 100,00 m²
Zimmer 3
Käuferprovision 2,38 % Im Erfolgsfall zahlen sowohl Käufer als auch Verkäufer an die HIS Immobilien GmbH jeweils eine Maklerprovision in Höhe von 2,38 % des beurkundeten Kaufpreises, einschließlich 19 % Mehrwertsteuer.

Weitere Angaben

Zustand Neuwertig
Objektart Apartment
Badezimmer 1
Heizungsart Etagenheizung
Baujahr 2005
Garage / Stellplatz Garage
Zimmer 3
Befeuerung Gas
Sep. WC's 2
Baujahr 2005
Vermietet 1

Objektbeschreibung

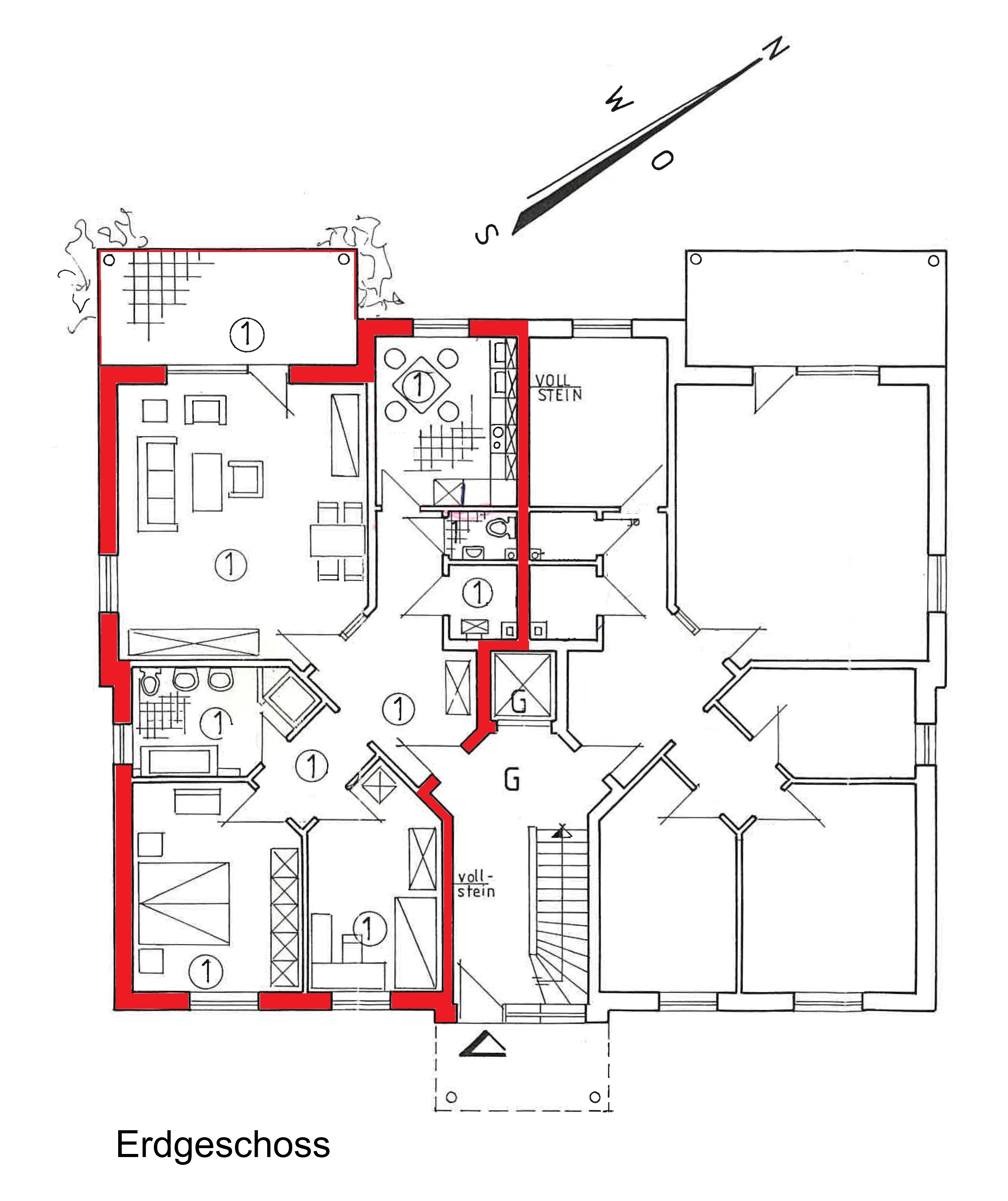
Die Wohnung teilt sich wie folgt auf:

Erdgeschoss
Diele/Eingangsbereich, Abstellraum, Gästetoilette, Wohn- und Esszimmer, Elternschlafzimmer, Kinder-/Gästezimmer, Küche, Balkon

Kellergeschoss
Gemeinschaftswasch- und Trockenraum, eigener Kellerraum

Außenbereich
PKW-Garage

Ausstattung

Diese zum Verkauf angebotene Erdgeschosswohnung befindet sich in einem gepflegten 6-Parteienhaus und präsentiert sich – ebenso wie das gesamte Gebäude und der Außenbereich – in einem sehr guten, nahezu neuwertigen Zustand. Eine harmonische Hausgemeinschaft unterstreicht die solide Wertanlage und macht die Wohnung zu einer idealen Altersvorsorge.

Das Haus ist voll unterkellert und verfügt über einen Aufzug. Die Wohnung liegt im Erdgeschoss und ist somit bequem und barrierefrei erreichbar.

Beim Betreten gelangt man in eine großzügige Diele, von der aus alle Räume optimal erreichbar sind. Die Wohnung verfügt über zwei Schlafzimmer, eine separate Küche sowie einen praktischen Abstellraum mit eigener Gasetagenheizung der Firma Viessmann, inklusive integriertem Warmwasserspeicher. Das Badezimmer ist hell und freundlich gestaltet. Es verfügt über einer barrierefreien Dusche sowie zwei Waschtische. Eine separate Gästetoilette ist ebenfalls vorhanden.

Das helle Wohn- und Esszimmer bietet ausreichend Platz und Zugang zur sonnigen, balkonähnlichen Terrasse.

Alle Fenster sind mit elektrischen Rollläden ausgestattet. Während die beiden Schlafzimmer mit Laminatboden in Buchenoptik versehen sind, wurde im Wohn- und Esszimmer ein hochwertiger Parkettboden verlegt. Alle übrigen Räume sind mit pflegeleichten Fliesen ausgestattet.

Im Keller stehen eine gemeinschaftliche Waschküche, ein Trockenraum sowie ein eigener Kellerraum mit zusätzlichem Stauraum zur Verfügung. Der Außenbereich ist gepflastert, pflegeleicht angelegt und bietet Zugang zur eigenen Garage.

Die Wohnung, das gesamte Haus sowie die Außenanlagen präsentieren sich in einem äußerst gepflegten Zustand.

Fazit:
Sie suchen eine solide vermietete Erdgeschosswohnung oder planen, im Alter selbst barrierefrei zu wohnen?
Dann investieren Sie schon heute in Ihre Zukunft – jetzt vermieten, später selbst einziehen!

Lage

Die Immobilie befindet sich in der beliebten Klever Oberstadt, in der Nähe zur Kreisverwaltung des Kreises Kleve – einer zentralen und gefragten Wohnlage der Stadt. Die Umgebung ist geprägt von gepflegten Wohnhäusern, kleinen Grünanlagen und einer sehr guten Infrastruktur. Einkaufsmöglichkeiten, Ärzte, Apotheken, Schulen und Kindergärten befinden sich in fußläufiger Entfernung.

Die Innenstadt mit ihren vielfältigen Geschäften, Restaurants und Cafés ist nur in wenigen Gehminuten entfernt. Bushaltestellen sind in 240 m bis 250 m Entfernung vorhanden. Der Bahnhof Kleve ist in ca. 5 Autominuten oder mit dem Bus bequem erreichbar. Die Autobahn A 57 (Auffahrt Goch/Kleve) liegt rund 10 km entfernt, die A 3 bei Emmerich etwa 20 km. Der Flughafen Weeze ist in etwa 30 Minuten mit dem Auto zu erreichen.

Die Lage verbindet zentrales, urbanes Wohnen mit einer ruhigen, angenehmen Wohnatmosphäre.

Sonstiges

PRO & CONTRA – Kurzübersicht

+++ ruhige und zentrale Lage in der Klever-Oberstadt +++
+++ 100 m² große Wohnung +++
+++ eigene Etagenheizung +++
+++ zwei Schlafzimmer +++
+++ inkl. Einbauküche +++
+++ inkl. großem Balkon +++
+++ inkl. PKW-Garage +++
+++ inkl. Kellerraum +++

Gerne stellen wir Ihnen die Wohnung ausführlich vor, oder Sie besuchen uns in unserem Büro. Bei allen Fragen rund um die Immobilie stehen wir Ihnen gerne zur Verfügung.

Wir freuen uns auf Ihren Kontakt! Ihr HIS Team.

Energieausweis

Ausweistyp Verbrauchsausweis
Energieträger Gas
Effizienzklasse B
Gültig bis 20.08.2034
Verbrauchkennwert 57.3 kWh/(m²*a)
Ausstellungsdatum 21.08.2024.

ABONNIEREN SIE UNS

HIS auf Facebook

Ansprechpartner

Michael Hoenselaar, Geschäftsführer, Gutachter und Immobilienmakler in Kleve
Michael Hoenselaar
0 28 21 - 97 21 70