47533 Kleve

Charmante Doppelhaushälfte in Top Lage von Rindern - Einziehen und Wohlfühlen!

Eckdaten

Objektnr. 99908359#ciRILV
Objektart Doppelhaushälfte
Lage Wohngebiet
Kaltmiete 1.300 €
Grundstücksfläche 454,00 m²
Wohnfläche 134,00 m²
Zimmer 4

Weitere Angaben

Zustand Voll saniert
Objektart Doppelhaushälfte
Badezimmer 1
Heizungsart Zentralheizung
Baujahr 1998
Garage / Stellplatz Garage
Zimmer 4
Befeuerung Gas
Sep. WC's 2
Baujahr 1998

Objektbeschreibung

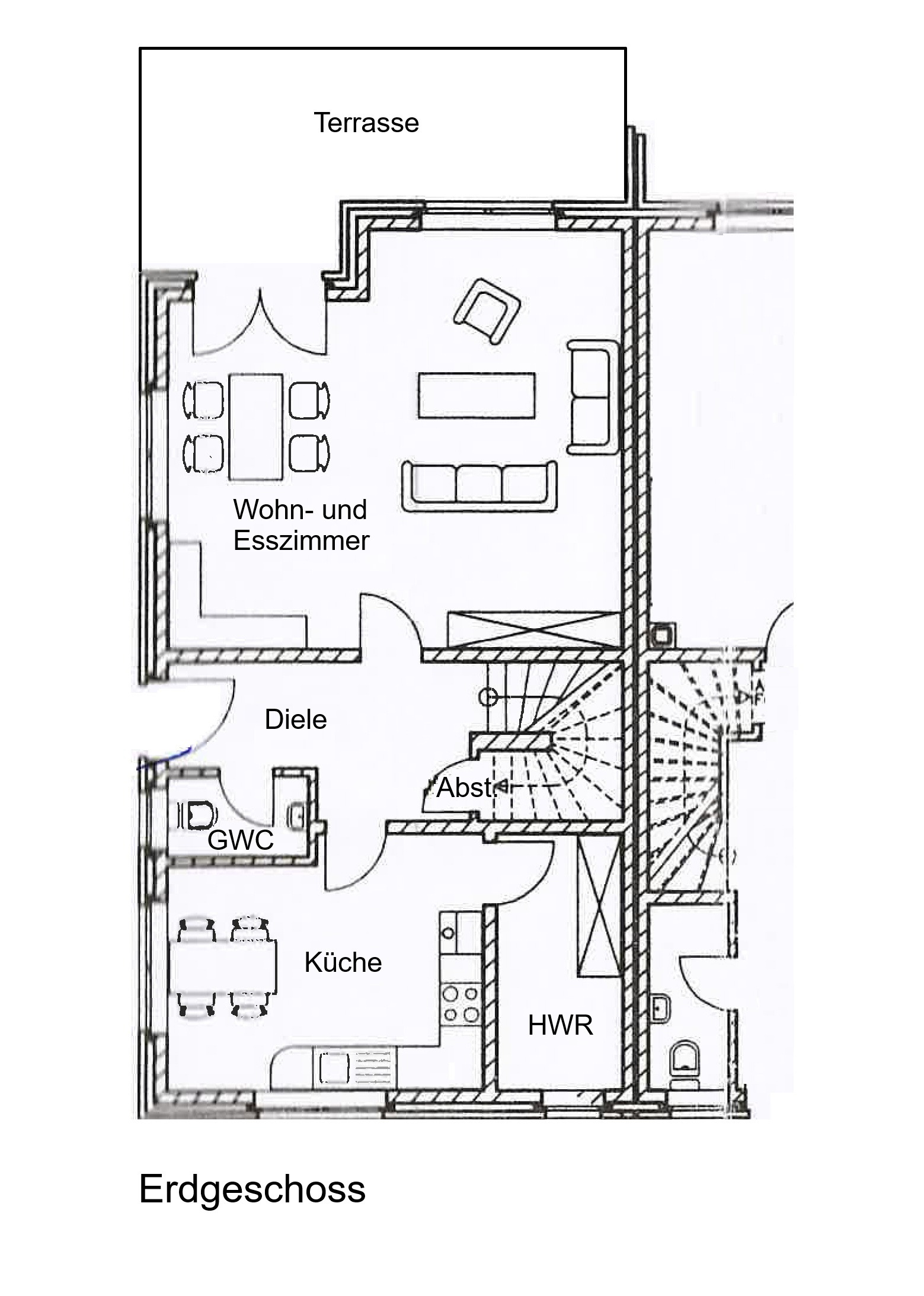
Die Immobilie teilt sich wie folgt auf:

Erdgeschoss
Diele, Gästetoilette, Küche, Hauswirtschaftsraum, Abstellraum, Wohn- und Esszimmer

Dachgeschoss
Flur, Badezimmer, 3 Schlafzimmer

Spitzboden
Lager und Abstellraum mit Heizung

Außenbereich
Garage, gepflasterte Terrasse, eingefriedete Gartenanlage mit Holzgartenhaus

Ausstattung

Diese im Jahr 1998 erbaute Doppelhaushälfte präsentiert sich in einem sehr gepflegten und vollständig renoviertem Zustand – Sie können ohne weiteren Aufwand direkt einziehen!

Die Immobilie bietet ca. 134 m² Wohnfläche, die sich auf ein großzügiges Erdgeschoss und ein helles, geräumiges Dachgeschoss verteilen. Drei gut geschnittene Schlafzimmer im Obergeschoss schaffen ausreichend Platz für die ganze Familie – ob Kinderzimmer, Büro oder Gästezimmer: hier bleiben keine Wünsche offen.

Beheizt wird die Immobilie von einer Erdgas-Zentralheizung mit separatem Warmwasserspeicher. Die Anlage befindet sich im isolierten Spitzboden des Hauses, der über eine Ausziehtreppe erreichbar ist.

Der großzügige Garten mit einer Fläche von ca. 454 m² ist liebevoll und zugleich pflegeleicht angelegt – ideal zum Spielen, Entspannen oder für gesellige Grillabende im Grünen.

Ein weiteres Highlight ist die geräumige Garage mit ca. 31 m² Fläche, die sich vor dem Haus befindet. Sie bietet bequem Platz für Ihr Auto, Fahrräder oder zusätzlichen Stauraum.

Sie suchen ein komfortables Zuhause mit viel Platz für Ihre Familie in ruhiger Wohnlage? Dann ist dieses Haus genau das Richtige für Sie!

Lage

Die Immobilie liegt im charmanten Stadtteil Rindern, einem lebendigen Klever Vorort mit etwa 2 710 Einwohnern.
Die unmittelbare Wohnumgebung der Immobilie ist geprägt von gepflegten Einfamilien- und Doppelhaussiedlungen, viel Grün, ruhigen Nebenstraßen und mit kurzen Wegen zu Spielplätzen, Kirchplatz und kleinen Grünflächen. Die Bewohnerstruktur in Rindern ist familienfreundlich: überwiegend junge bis mittelalte Paare sowie Familien mit Kindern, ergänzt durch einige ältere Anwohner — ein lebendiges Vorstadtbild.

Entfernungen & Verkehrsanbindung:
Bushaltestelle: ca. 200 m
Bahnhof Kleve: ca. 4 km
A 57 Goch: ca. 12 km
A 3 Emmerich: ca. 20 km
Flughäfen: Weeze etwa 33 km, Düsseldorf ca. 93 km

Diese Lage verbindet ländliche Ruhe mit idealer Reintegration ins städtische Leben – perfekt für Familien, Pendler und alle, die eine gute Infrastruktur im Grünen schätzen.

Sonstiges

PRO & CONTRA – Kurzübersicht

+++ ruhige Wohnlage am Ende einer Sackgasse +++
+++ ca. 134 m² Wohnfläche +++
+++ 3 Schlafzimmer +++
+++ großer Garten +++
+++ inkl. PKW-Garage +++

Hinweis: Zusätzlich zu den umlagefähigen Nebenkosten in Höhe von 200 € sind die Kosten für Gas und Strom vom Mieter selbst zu tragen.

Gerne stellen wir Ihnen das Haus ausführlich vor, oder Sie besuchen uns in unserem Büro. Bei allen Fragen rund um die Immobilie stehen wir Ihnen gerne zur Verfügung.

Wir freuen uns auf Ihren Kontakt! Ihr HIS Team.

Energieausweis

Ausweistyp Verbrauchsausweis
Energieträger Gas
Effizienzklasse C
Gültig bis 01.04.2035
Verbrauchkennwert 78.4 kWh/(m²*a)
Ausstellungsdatum 02.04.2025.

ABONNIEREN SIE UNS

HIS auf Facebook

Ansprechpartner

Eva Hagelschur
+49 2821 972170